Project Cruquius Docks
- Rental prices per monthFrom €1.250 to €3.000
- View available properties
- 45 - 170 m²
- Average of 3 homes available per month
- Construction year 2022
- Private sector
- 3 x the monthly rent as income standard
The income requirement is a guideline that lessors use to determine if you can financially afford the monthly rent. It helps both the tenant and the lessor ensure that the housing costs are reasonable compared to your income.
How Does It Work?
Here in the add you'll see the requirement for the homes in the project. "x times the monthly rent" means that your gross monthly income is at least x times the basic monthly rent.
Combined Income
Joint income If you're renting with a partner, your incomes are added together. The second income is counted for 100%.
Why is this important?
The income requirement prevents you from renting a home that doesn't financially fit your situation. Landlords are also legally obligated to rent responsibly.
PLEASE NOTE
The images shown are intended to give you an impression of the property.
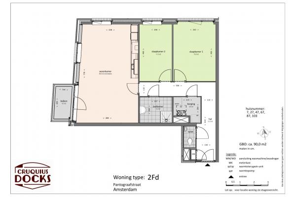
Since these images may be of a similar property, the layout, finishes, and dimensions may differ in reality. Therefore, always carefully check the specific property type and the details in the listing. The floor plan of the property is definitive and should correspond to the Type listed under Features.
No rights can be derived from this information.
This is Cruquius Docks!
A transformed harbour with a rich history, Amsterdam's Cruquius Eiland now offers space to live: rent an apartment in this beautiful, vibrant place full of development... by the water! Just 15 minutes by bike from the centre of Amsterdam and within Amsterdam's A10 ring road: this is Cruquius Docks!
This is what it looks like
Cruquius Docks consists of 155 free sector rental apartments with an industrial look spread over 3 buildings. The floor-to-ceiling curved windows with black frames and brick façade make you feel like you're in an industrial loft. But with today's living comfort and sustainability. Most apartments have two bedrooms and a generous balcony or roof terrace. Apartments facing east have water views.
Floor
-
floor is not always present.
Walls
-
are white RAL9010
Kitchen Bruynzeel White / W112 type Olympia
-
countertop plastic anthracite/black
-
countertop lighting is present
-
fridge-freezer brand ATAG type KS13178D
-
hob brand ATAG induction width 60 cm
-
wall extractor hood brand ATAG type WS90211JM width 90 cm, stainless steel
-
dishwasher brand ATAG type VA2113PT
-
combi microwave brand ATAG type CX14411A
-
taps brand Grohe
Bathroom
-
sanitary brand Geberit
-
shower cabin - fully closable - clear glass
-
taps / shower set brand Grohe
-
design radiator brand unknown
Storage space
-
washing machine connection present
A unique place to live
Cruquius Docks is a unique place to live. Your apartment is surrounded by greenery and water and has a view that won't get boring any time soon. Each apartment has a balcony or roof terrace where it is great to relax. And... the centre of Amsterdam is at 10 minutes' cycling distance.
The neighbourhood is in full development and already has many amenities to offer. Cruquius Docks also has commercial spaces on the ground floor that will be filled by entrepreneurs, including catering, sports and health facilities.
The apartments are sustainably built without gas, equipped with underfloor heating, and spread across three buildings. Apartments sizes range from 45 to 124 m² with an average of 81 m², so there's a choice for everyone.

The raw, industrial edge of the city, refined into a unique and water-rich place to live.
Living in Cruquius Docks means living on a bold, industrial peninsula that has been transformed into a modern and water-rich residential area. The atmosphere is a unique mix of historical heritage and new architecture. Enjoy the green quays and the water right at your doorstep. The neighborhood is rich with creative and culinary hotspots, with trendy restaurants and breweries in renovated warehouses that create a lively, dynamic atmosphere. For daily groceries, the Brazilië Shopping Center and the various shops on Javastraat are nearby. The area is perfectly designed for cyclists; the center of Amsterdam is just a 10-minute bike ride away. Tram and bus stops are a short walk away and offer fast connections to the rest of the city.
Nearby Amenities...
| Supermarket | Albert Heijn Cruquiusweg (compact AH) | ± 200 m |
| Supermarket | Dirk van den Broek (Oostpoort) | ± 1.5 km |
| Pharmacy | Linnaeusstraat Pharmacy | ± 1.6 km |
| General Practitioner | Zeeburg General Practice | ± 1.2 km |
| General Practitioner | Oost Health Centre | ± 1.6 km |
| Public Transport | Zeeburgerpad stop (bus 22, 65) | ± 500 m |
| Public Transport | Muiderpoort Station | ± 2.2 km |
| Daycare | Partou Cruquiusweg | ± 300 m |
| Primary School | De Kleine Kapitein (Zeeburgerpad) | ± 700 m |
| Park / Nature | Flevopark | ± 1 km |
| Sports / Fitness | SportCity Oost | ± 1.5 km |
| Cafés / Restaurants | Your Daily, Branie, Cruquius Local, The Harbour Club | ± 10–500 m |
Who is allowed to live in Cruquius Docks?





Frequently Asked Questions
Am I eligible?
The easiest way to find out is with a Free Account! Start here, complete your profile fully, add the properties you like, and/or fill in your search profile. The system will then immediately show if it's a match.
How can I view these properties?
We work with Open Houses, where you are more than welcome. We will automatically invite you if we have your data. Here you can read everything you need to know, so you are fully prepared. We hope to see you soon! :)
How can I apply/rent?
By attending the (online) open house and/or entering the 3-digit code after the open house and performing the Datakeeper check. After this, you will automatically receive a rental proposal and if it is your turn, we will quickly send you the rental agreement. Here you read full instructions about this process.











































































